Διώροφη
Κατοικία

127 τ.μ.

Διώροφη
Κατοικία

127 τ.μ.

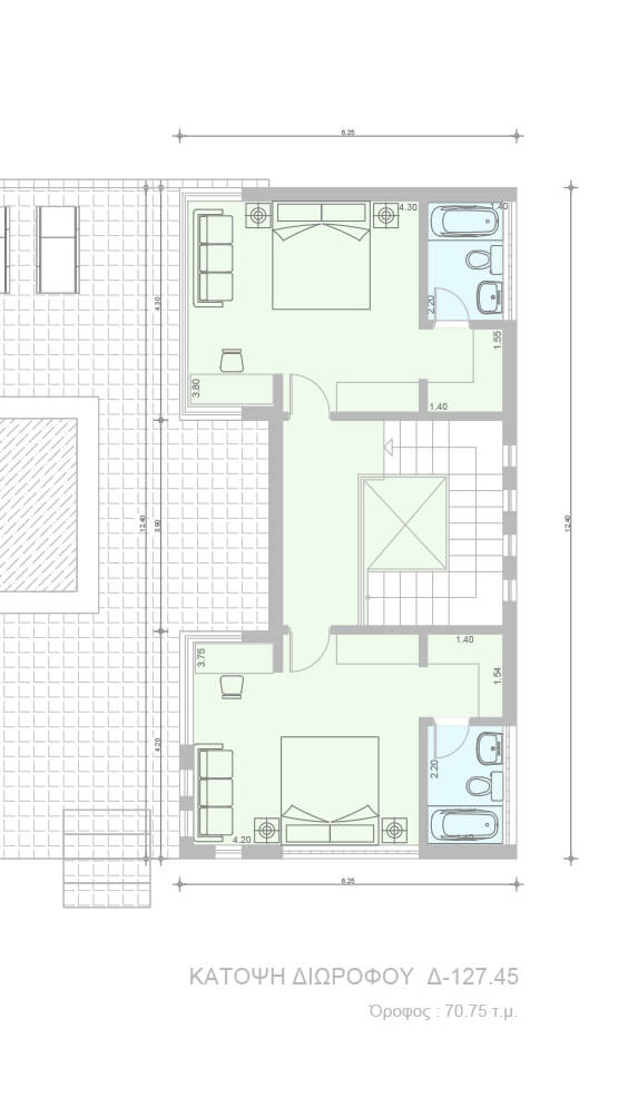
Υπνοδωμάτια
2

Μπάνιο
3

Κουζίνα
1

Σαλόνι
1

Διώροφη κατοικία Δ-127b συνολικής επιφάνειας 127,45 τ.μ.

ΑΝΔΡΟΥΛΑΚΗΣ
ΠΡΟΚΑΤΑΣΚΕΥΑΣΜΕΝΑ

Η εταιρεία Ανδρουλάκης προκατασκευασμένα σπίτια, σταθερά στην κορυφή της προκατασκευασμένης δόμησης, από το 1984 στην Ελλάδα & πανευρωπαϊκά, εφαρμόζει τεχνολογίες που επιβάλλει η πράσινη δόμηση.
Κύριο δομικό υλικό για τις κατασκευές μας είναι η Σουηδική & Σκανδιναβική ξυλεία:

Α) Ξηραντηρίου, με εναπομείναντα υγρασία 12-15%

Β) VACUUM: Εισαγωγή της ξυλείας με φυσική απεντόμωση χωρίς χημικό εμποτισμό. Το ξύλο είναι ένα φυσικό υλικό, λειτουργεί ως τέλειος φυσικός ρυθμιστής της θερμοκρασίας και της υγρασίας στο εσωτερικό του σπιτιού, προσδίδει φυσικές θερμομονωτικές ιδιότητες που είναι ανώτερες από οποιοδήποτε άλλο οικοδομικό υλικό.

Υψηλή αντισεισμικότητα
Οι κατοικίες με ξύλινο φορέα – σκελετό παρουσιάζουν υψηλή αντισεισμικότητα η οποία οφείλεται στο πλεονέκτημα του ξύλου ως υλικό, στη μεγάλη μηχανική αντοχή του – πυκνότητα, σε σχέση με το βάρος του, στην ελαστικότητα του, που επιτρέπει την απορρόφηση της σεισμικής φόρτισης στις συνδέσεις των στοιχείων του σκελετού.
Επιπλέον το ξύλο δε κρατάει σεισμική μνήμη, αντέχει σε συνεχόμενες σεισμικές δονήσεις με διάφορες επιταχύνσεις καθιστώντας τη κατοικία πλήρως αντισεισμική.
Η Ανδρουλάκης προκατασκευασμενα σπιτια, προχώρησε στην απόκτηση ενός υπερσύγχρονου ηλεκτρονικού συστήματος προσομοίωσης, το οποίο ελέγχει την αντισεισμικότητα του κάθε κτιρίου μεμονωμένα. Η μελέτη αυτή, εξατομικευμένη στις κατασκευαστικές προδιαγραφές της εκάστοτε κατοικίας, η οποία δίνεται & στον ιδιοκτήτη σε ηλεκτρονική μορφή.

Ελευθερία Αρχιτεκτονικού σχεδιασμού

Προκατ σπιτια, με πλήρη ελευθερία αρχιτεκτονικού σχεδιασμού, δίνουμε λύσεις που προσαρμόζονται με γνώμονα  την εξυπηρέτηση των αναγκών σας & σύμφωνα με τις νέες αρχιτεκτονικές τάσεις.

Προκάτ σπίτια , υψηλής αισθητικής & ποιότητας, πλήρως αντισεισμικά, με το δυνατότερο χαμηλό κόστος, λόγω της καθετοποιημένης μονάδας παραγωγής.

Βιοκλιματική / Ενεργειακή Δόμηση

Η ΑΝΔΡΟΥΛΑΚΗΣ διαθέτει την απαραίτητη τεχνογνωσία & εμπειρία στην κατασκευή βιοκλιματικών κατοικιών. Κάθε βιοκλιματικό σπίτι κατασκευάζεται κατόπιν εμπεριστατωμένης μελέτης, μεμονωμένα για κάθε περίπτωση, στα πλαίσια της αρχιτεκτονικής μελέτης.

Έμπειροι στη βιοκλιματική δόμηση, αρχιτέκτονες – πολιτικοί μηχανικοί – σχεδιαστές, που είναι ενταγμένοι στο επιτελείο μας, δίνουν λύσεις μοναδικές για κάθε οικόπεδο & βάση τις ξεχωριστές ανάγκες του κάθε πελάτη. Βασικές αρχές για τη κατασκευή ενός βιοκλιματικού σπιτιού είναι η διατήρηση του σωστού προσανατολισμού, ώστε να αξιοποιούνται κατάλληλα όλες οι πλευρές του, οι διαστάσεις των ανοιγμάτων για φυσικό φωτισμό & αερισμό, τα συστήματα σκίασης κλπ.

Τα βιοκλιματικά σπίτια που κατασκευάζουμε πληρούν τα υψηλά πρότυπα κατασκευής, τα υλικά από τα οποία τα κατασκευάζουμε είναι εξ’ ολοκλήρου φυσικά &
ανανεώσιμα & φέρουν το όνομα κορυφαίων κατασκευαστών.

Ενεργειακά προκατασκευασμένα σπίτια,  με εξαιρετικές θερμομονωτικές ιδιότητες που υπερκαλύπτουν τον ΚΕΝΑΚ.

Η Ανδρουλάκης προκατασκευασμένα σπίτια, κατασκευάζει Ενεργειακά αυτόνομα σπίτια, εξασφαλίζει κορυφαίους δείκτες θερμομόνωσης, ηχομόνωσης & υγρομόνωσης, χρησιμοποιεί υψηλών προδιαγραφών θερμομονώσεις, καθιστώντας τα σπίτια της πλήρως ενεργειακά, με Συντελεστή θερμοπερατότητας της
τοιχοποιίας έως 0,09 Wm2K, επιτυγχάνει μείωση στη κατανάλωση ενέργειας έως και 80%, κατατάσσοντας τα ενεργειακά έως και κλάση Α+

 

Η εταιρεία Ανδρουλάκης έχει ενσωματώσει στην εργασιακή της ομάδα τους καλύτερους συνεργάτες & αντιπροσώπους στην Ελλάδα & το εξωτερικό.

Επισκεπτόμενοι τους εκθεσιακούς μας χώρους έχετε τη δυνατότητα να δείτε την υπεροχή των κατασκευών μας!!!

Δείτε επίσης

Επικοινωνήστε μαζί μας.

Επικοινωνήστε μαζί μας.