Ισόγεια
κατοικία

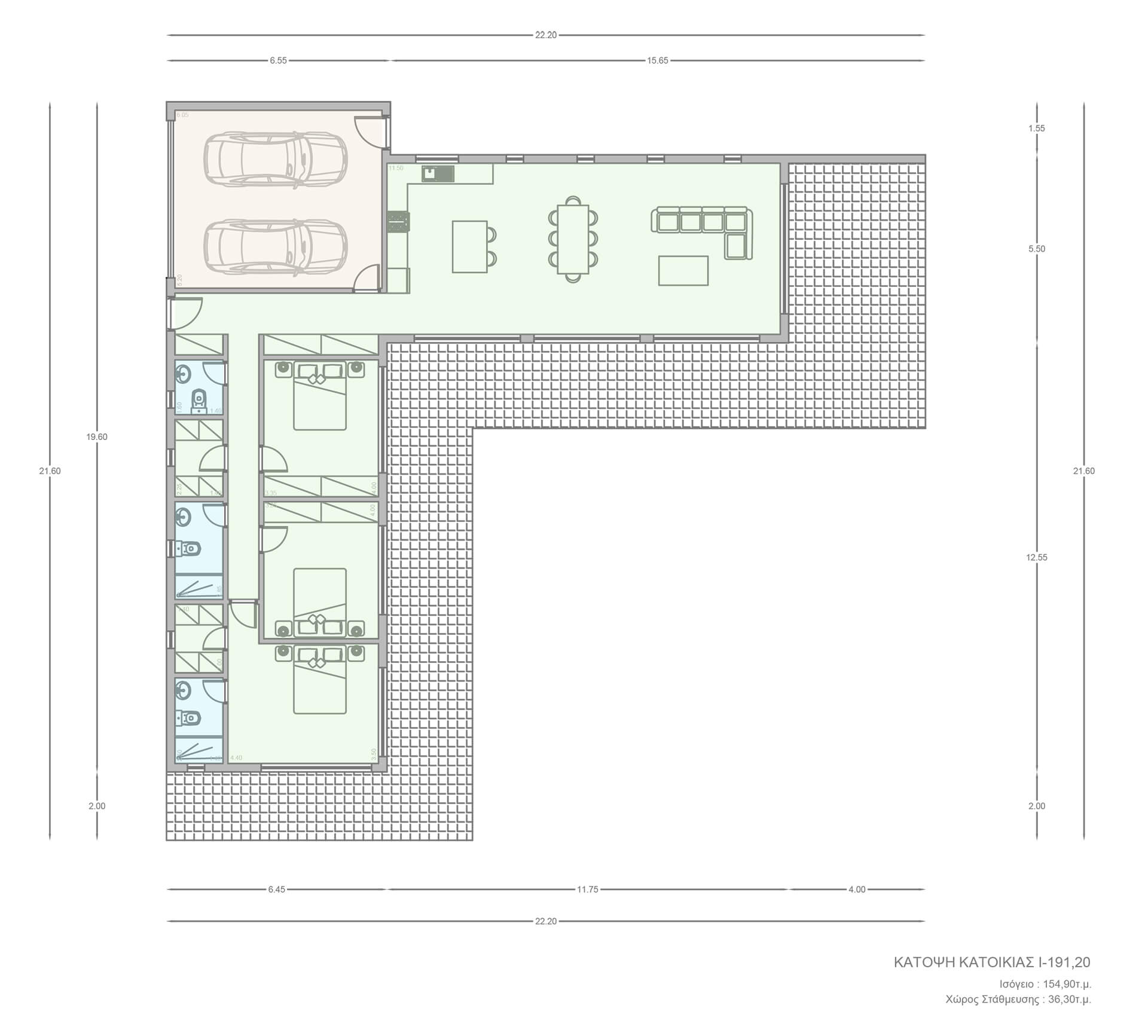
191 τ.μ.

Αρχική » icf » Ισόγειες κατοικίες απο μπετόν ICF » Ισόγεια Κατοικία 191 τ.μ.

Υπνοδωμάτια
3

Μπάνιο
3

Κουζίνα
1

Σαλόνι
1

Αποθηκευτικός χώρος
1

ICF

Ισόγεια κατοικία Ι-191 συνολικής επιφάνειας 191,20 τ.μ.

ΑΝΔΡΟΥΛΑΚΗΣ 
ICF ΣΥΜΒΑΤΙΚΗ ΔΟΜΗΣΗ 

Η εταιρεία Ανδρουλάκης, σταθερά στην κορυφή της προκατασκευασμένης & συμβατικής δόμησης, επί 41 συναπτά έτη, στην Ελλάδα & πανευρωπαϊκά, εφαρμόζει τεχνολογίες που επιβάλλει η πράσινη δόμηση.
Κύριο κομικό υλικό για τις συμβατικές κατασκευές μας είναι το καινοτόμο θερμομονωτικό καλούπι οπλισμένου σκυροδέματος ICF SMART FORM SYSTEM,
σε συνδυασμό με χάλυβα οπλισμού Σκυροδέματος B500c & σκυρόδεμα C25/30.

Το ICF SMART FORM SYSTEM είναι ένα ειδικά σχεδιασμένο θερμομονωτικό καλούπι, με τη μεγαλύτερη μοριακή πυκνότητα, κατ’ επέκταση καλύτερο συντελεστή θερμομόνωσης – υγρομόνωσης – ηχομόνωσης (συγκριτικά με τα παρεμφερή καλούπια της αγορας), το οποίο έχει σε όλη την περίμετρο του κάθετες προεξοχές-εσοχές (αρσενικό-θηλυκό), με αποτέλεσμα την στιβαρή & στεγανή συναρμογή τους.
Στην εσωτερική του πλευρά φέρουν μεγάλες αυλακώσεις οι οποίες αυξάνουν την πρόσφυση του σκυροδέματος & αποκλείει τον κίνδυνο αποκόλλησης της μόνωσης από το σκυρόδεμα.
Στην εξωτερική πλευρά το ICF SMART FORM SYSTEM φέρει μικρότερες αυλακώσεις για καλύτερη πρόσφυση στις επιστρώσεις του θερμοσοβά.

Ο φέρων οργανισμός και η τοιχοποιία αποτελούν μια ενιαία, συμπαγή, διπλά

μονωμένη, μονολιθική και αντισεισμική συμβατική κατασκευή αφού το κτίριο είναι αμιγώς σκυροδετημένο & η χύτευση γίνεται ανά όροφο με ενιαία σκυροδέτηση, κολώνες- τοιχία – πλάκα.

Υψηλή αντισεισμικότητα 

Κύριος σκοπός του χάλυβα οπλισμού είναι η αντοχή και η ευστάθεια της κατασκευής ειδικά σε περιπτώσεις έντονων σεισμικών δονήσεων.
Οι χάλυβες οπλισμού Β500
c που χρησιμοποιεί η εταιρεία μας είναι ελληνικής προέλευσης, εξαιρετικής ποιότητας, με σύγχρονες προδιαγραφές, διακρίνονται για τις εξαιρετικές ιδιότητες αντοχής, ολκιμότητας, ευκαμψίας και συγκολλησιμότητας, σύμφωνα με τους απαιτητικούς αντισεισμικούς κανονισμούς
Ο χάλυβας οπλισμού (κολώνες -μανδύες, πλέγματα) ενισχύει το φέροντα οργανισμό (σκελετό) του κτιρίου και δεν αφήνει το σκυρόδεμα να σπάσει ή να ραγίσει σε κρίσιμα σημεία όπως κολώνες, δοκούς, πλάκες κλπ.
Σε σεισμική δραστηριότητα ο χάλυβας απορροφά τη σεισμική ενέργεια και αποτρέπει την πρόκληση ζημιών στο 
κτήριο…
Λόγω της μεγάλης σεισμικότητας της χώρας μας τηρείται αυστηρά η στατική μελέτη του κτιρίου και σε συνδυασμό με τη χρήση του θερμομονωτικού καλουπιού της ΑΝΔΡΟΥΛΑΚΗΣ που μας επιτρέπει να έχουμε ένα αμιγώς σκυροδετημένο κτίριο, καθιστά τη κατοικία πλήρως αντισεισμική η οποία αντέχει σε συνεχόμενες σεισμικές δονήσεις με διάφορες επιταχύνσεις (g: 0,5 έως 0,9) και διάφορες κατευθύνσεις.

Ελευθερία Αρχιτεκτονικού σχεδιασμού

ICF σπιτια, με πλήρη ελευθερία αρχιτεκτονικού σχεδιασμού, δίνουμε λύσεις που προσαρμόζονται με γνώμονα τους όρους δόμησης του οικοπέδου σας, την εξυπηρέτηση των αναγκών σας & πάντα σύμφωνα με τις νέες αρχιτεκτονικές τάσεις.    
Σπίτια από μπετό , υψηλής αισθητικής & ποιότητας, πλήρως αντισεισμικά, με το δυνατότερο χαμηλό κόστος, λόγω της καθετοποιημένης μονάδας παραγωγής 

Βιοκλιματική / Ενεργειακή Δόμηση

Η ΑΝΔΡΟΥΛΑΚΗΣ διαθέτει την απαραίτητη τεχνογνωσία & εμπειρία στην κατασκευή βιοκλιματικών κατοικιών. Κάθε βιοκλιματικό σπίτι κατασκευάζεται κατόπιν εμπεριστατωμένης μελέτης, μεμονωμένα για κάθε περίπτωση, στα πλαίσια της αρχιτεκτονικής μελέτης.

Έμπειροι στη βιοκλιματική δόμηση, αρχιτέκτονες – πολιτικοί μηχανικοί – σχεδιαστές, που είναι ενταγμένοι στο επιτελείο μας, δίνουν λύσεις μοναδικές για κάθε οικόπεδο & βάση τις ξεχωριστές ανάγκες του κάθε πελάτη. Βασικές αρχές για τη κατασκευή ενός βιοκλιματικού σπιτιού είναι η διατήρηση του σωστού προσανατολισμού, ώστε να αξιοποιούνται κατάλληλα όλες οι πλευρές του, οι διαστάσεις των ανοιγμάτων για φυσικό φωτισμό & αερισμό, τα συστήματα σκίασης κλπ.

Τα βιοκλιματικά σπίτια που κατασκευάζουμε πληρούν τα υψηλά πρότυπα κατασκευής, τα υλικά από τα οποία τα κατασκευάζουμε είναι εξ’ ολοκλήρου φυσικά &
ανανεώσιμα & φέρουν το όνομα κορυφαίων κατασκευαστών.

Ενεργειακά προκατασκευασμένα σπίτια,  με εξαιρετικές θερμομονωτικές ιδιότητες που υπερκαλύπτουν τον ΚΕΝΑΚ.

Η Ανδρουλάκης προκατασκευασμένα σπίτια, κατασκευάζει Ενεργειακά αυτόνομα σπίτια, εξασφαλίζει κορυφαίους δείκτες θερμομόνωσης, ηχομόνωσης & υγρομόνωσης, χρησιμοποιεί υψηλών προδιαγραφών θερμομονώσεις, καθιστώντας τα σπίτια της πλήρως ενεργειακά, με Συντελεστή θερμοπερατότητας της
τοιχοποιίας έως 0,09 Wm2K, επιτυγχάνει μείωση στη κατανάλωση ενέργειας έως και 80%, κατατάσσοντας τα ενεργειακά έως και κλάση Α+

 

Η εταιρεία Ανδρουλάκης έχει ενσωματώσει στην εργασιακή της ομάδα τους καλύτερους συνεργάτες & αντιπροσώπους στην Ελλάδα & το εξωτερικό.

Επισκεπτόμενοι τους εκθεσιακούς μας χώρους έχετε τη δυνατότητα να δείτε την υπεροχή των κατασκευών μας!!!

Δείτε επίσης

Επικοινωνήστε μαζί μας.

Επικοινωνήστε μαζί μας.